庁舎案内
各課の主な業務と連絡先
| 各課 | 主な事務 | 連絡先 |
| 総務課 | 人事、文書、給与、行政連絡、消防、防災、防犯、交通安全、車輌管理、消費者行政、国際交流 (選管事務局) |
0175-78-2111 323,324, 326,328) |
| 企画財政課 | 予算、財政、電源三法交付金、広報、統計、原子力防災、コミュニティ助成、新エネルギー |
0175-78-2111 |
| 税務課 | 町税賦課、徴収、納税相談、納税証明、地籍図 |
0175-78-2111 228,231) |
| 町民課 | 戸籍住民登録、国民健康保険、後期高齢者医療、環境衛生 |
0175-78-2111 216,218, 236,237) |
| 福祉課 |
老人福祉、母子福祉、児童福祉、保育所、介護保険、地域包括支援 |
0175-78-2111 214,217, 219,220, 221,222, 223,225, 227,229) |
| 産業振興課 | 農業、林業、畜産、水産、商工、雇用促進 |
0175-78-2111 360,361, 362,364, 365) |
| 建設水道課 | 道路管理、町営住宅、除雪、漁港、土地改良、上水道、農業集落排水 |
0175-78-2111 342,343, 345,353) |
| 出納室 | 会計 | 0175-78-2111 内線番号 (232,312) |
| 議会事務局 | 議会運営、議事録、議会広報 | 0175-78-2111 内線番号 (430,431) |
| 教育委員会・教育課 | 学校教育、学校施設、就学、学校検診、スクールバス、教職員住宅、生涯学習、社会教育団体、青少年教育、スポーツ団体、社会教育施設 | 0175-78-6622 |
学校給食センター |
学校給食 | 0175-72-1182 |
公民館 |
子ども会、各種教室 | 0175-78-6100 |
図書館 |
図書資料整備、図書の利用・貸出 | 0175-78-6100 |
| 農業委員会 | 農業者年金、農家基本台帳、家畜経営協定 | 0175-78-2111 内線番号 (230,352) |
| 選挙管理委員会 | 選挙 |
0175-78-2111 |
| 健康みらい課 | 母子保健、乳幼児相談、予防接種、健診、献血 |
0175-73-7733
|
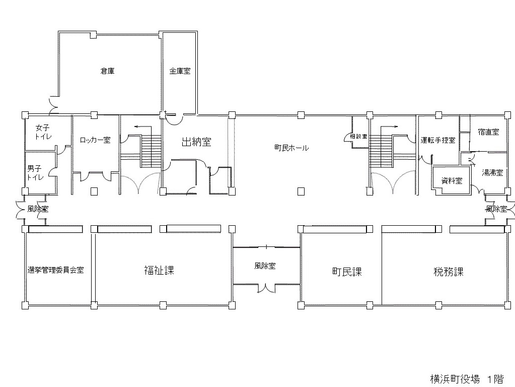
庁舎内フロアマップ



登録日: / 更新日:



